Page suivante
Page précédente
Parthenay (79200)

Maison 6 pièce(s) 4 chambre(s) 142 m²

1
3500 m²
1
183 000 €
Réf V1049

Nous vous proposons à la vente une maison de 142 m² située sur un terrain clos de 3500 m² à PARTHENAY.

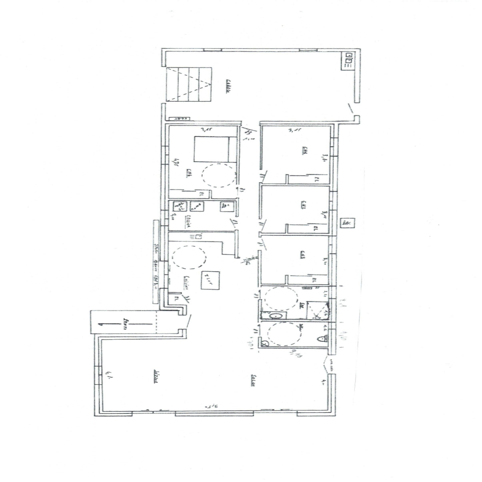
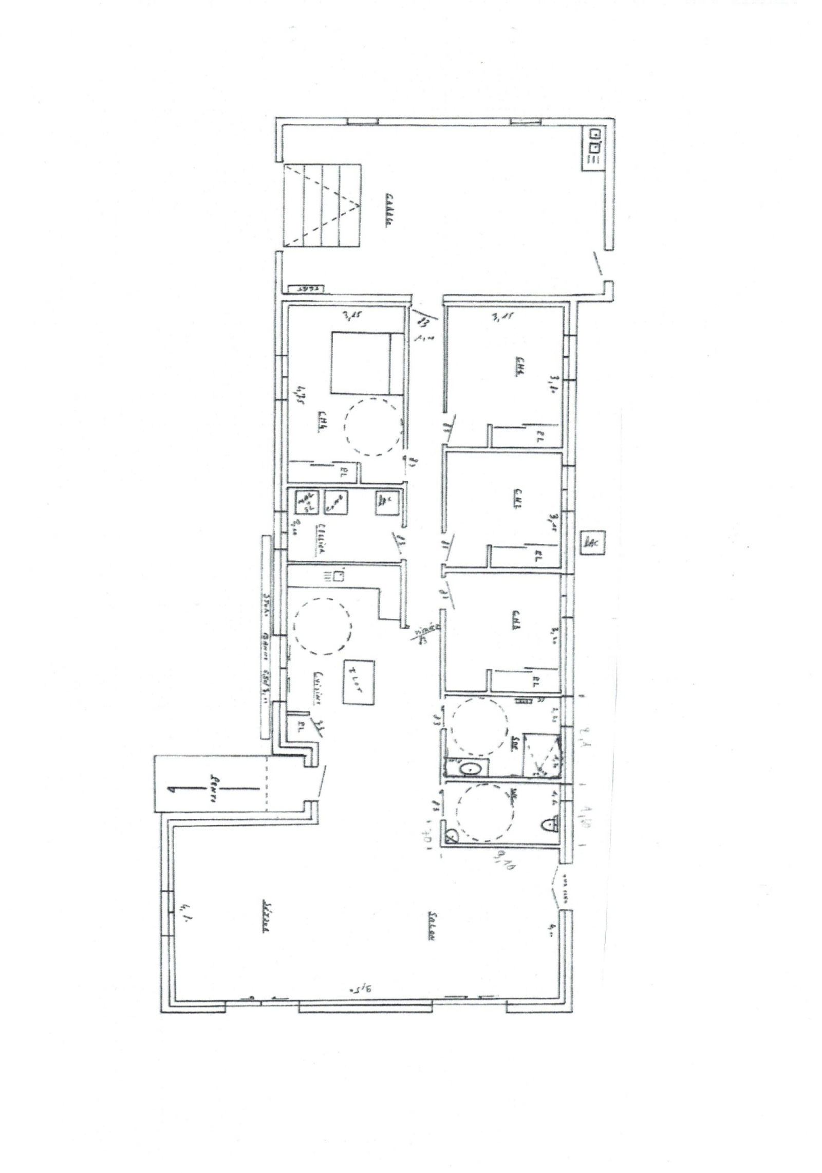
Cette maison adaptée pour personnes à mobilité réduite, de plain-pied dispose d'une entrée sur un séjour lumineux avec cuisine aménagée ouverte, d'un cellier, de 4 chambres, d'une salle d'eau avec douche à l'italienne, d'un WC adapté PMR et d'un garage. La maisons de 2021 est conforme aux normes d'habitation actuelle. L'assainissement est raccordé au tout à l'égout, les menuiseries en PVC double vitrage, plancher chauffant par pompe à chaleur. La maison est louée 1000 euro par mois jusqu'en juin 2026. Quelques travaux de rafraichissement à prévoir.


Les informations sur les risques auxquels ce bien est exposé sont disponibles sur le site Géorisques

Bilan énergétique

Diagnostics énergetiques
A propos de ce bien Caractéristiques de ce bien
  • Surface 142 m²
  • carrez 142 m²
  • terrain 3 500 m²
  • séjour 69 m²
  • 4 chambre(s)
  • 1 salle(s) d'eau
  • construit en 2021
  • cuisine américaine (équipée)
  • 1 garage(s)
  • 50 parking(s)
  • exposition Sud
  • terrasse
  • arboré
  • piscinable
  • accès handicapé

Composition

Composition de ce bien

Rez-de-chaussée

  • salon/sejour 69 m² m²
  • chambre 15.74 m²
  • chambre 11.16 m²
  • chambre 9.26 m²
  • chambre 9.40 m²
  • salle de bain 6.53 m² m²
  • WC 4.69 m² m²
  • cellier 6.65 m² m²
  • garage 39.44 m² m²

Financier

Informations financières
Prix de vente 183 000 € Les honoraires d'agence seront intégralement à la charge du vendeur
Taxe foncière annuelle 1 468 €

Simulation

Calcul des mensualités
* Champs obligatoires
BIEN CHEZ SOI - CHAMARD Immobilier Agence